Büroräumlichkeiten in Völs

Individuell gestaltbare Bürofläche mit Parkmöglichkeiten vor der Türe!

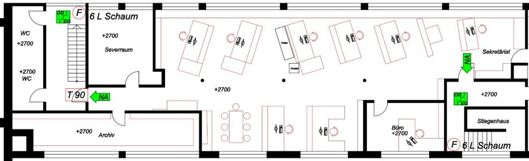
Diese Einheit befinden sich im ersten Obergeschoss des Betriebsgebäudes Aflingerstraße 38 in Völs und sind über ein eigene Stiegenhaus erreichbar.

Die hellen Räume mit großen Fenstern sind individuell gestaltbar. Derzeit ist die Fläche von ca. 216 m² in zwei Einzelräume und einem großen offenen Bereich aufgeteilt. Eine Teeküche ist bereits vorhanden, ebenso ein Archivraum und zwei Toiletten in der selben Ebene.

Ein Ausbau der Flächen je nach Bedarf wäre durch den Vermieter ist durchaus denkbar.

Autoabstellplätze vor dem Haus für Ihre Mitarbeiter und Kunden können ebenso angemietet werden.

Lage

Diese vielseitige Liegenschaft befindet sich in der Gemeinde Völs, in einer dynamischen und gut angebundenen Lage, Die Immobilie profitiert von der Nähe zum Autobahnanschluss, welche eine hervorragende Erreichbarkeit für Mitarbeiter und Kunden garantiert.

In unmittelbarer Nähe finden Sie diverse Einkaufsmöglichkeiten, Restaurants und Dienstleistungen.

Details

Objektnr. extern:
EK-47
Stand vom:
09.03.2026
Nutzungsart:
Gewerbe
Vermarktungsart:
Miete/Pacht
Objektart:
Büro/Praxen (Bürofläche)
Ort:
6176 Völs
Verfügbar ab:
ab sofort
Bürofläche:
216,00 m²
Ausstattung:
Einbauküche

Objektdaten & Nebenkosten

Nutzfläche: ca. 216 m²
Miete pm: € 1.700,- netto zzgl. 20 % USt.
Betriebskosten: € 432,- netto pm zzgl. 20 % USt.
Autoabstellplatz: € 50.-netto pm zzgl 20 % USt.
Verfügbarkeit: ab sofort
Energiekennzahlen: in Ausarbeitung

Hinweis
EISENKIES Immobilien ist beauftragt, die gegenständliche Liegenschaft zu vermieten. Alle Objektangaben wurden nach bestem Wissen und Gewissen gemacht. Da diese jedoch teilweise auf Informationen Dritter beruhen, können wir für die Richtigkeit keine Haftung übernehmen.

Nebenkostenübersicht:
Kosten für die Errichtung des Mietvertrages - entfallen!
Vergebührung beim Finanzamt (= Miete inkl. BK/HK x Laufzeit des MV, davon 1 %)
Vermittlungshonorar in der Höhe von 2 Bruttomonatsmieten zuzügl. 20 % USt. bei einer Laufzeit bis 3 Jahre